|
สวัสดีค่ะ วันนี้เราจะพาทุกคนไปชม แบบบ้านสามชั้น สไตล์โมเดิร์น พร้อมการออกแบบที่เน้นให้มีพื้นที่สำหรับปลูกต้นไม้ สร้างความร่มรื่น เหมาะสำหรับบ้านในเมืองร้อน ผลงานชิ้นนี้เป็นการออกแบบจาก VTN Architects เราลองไปชมกันเลยค่ะ
บ้านหลังนี้เป็นหนึ่งในโครงการที่มีชื่อว่า House for Trees เป็นโครงการสร้างบ้านสีเขียวให้กับชุมชนเมือง มีทำเลที่ตั้งอยู่ในเมืองโฮจิมินห์ ประเทศเวียดนาม เพื่อลดทอนมลภาวะและบรรยากาศแออัด ทั้งยังลดความเสี่ยงจากภัยพิบัติน้ำท่วม รวมไปถึงการเชื่อมความสัมพันธ์ให้คนได้อยู่ใกล้ชิดกับธรรมชาติมากขึ้น

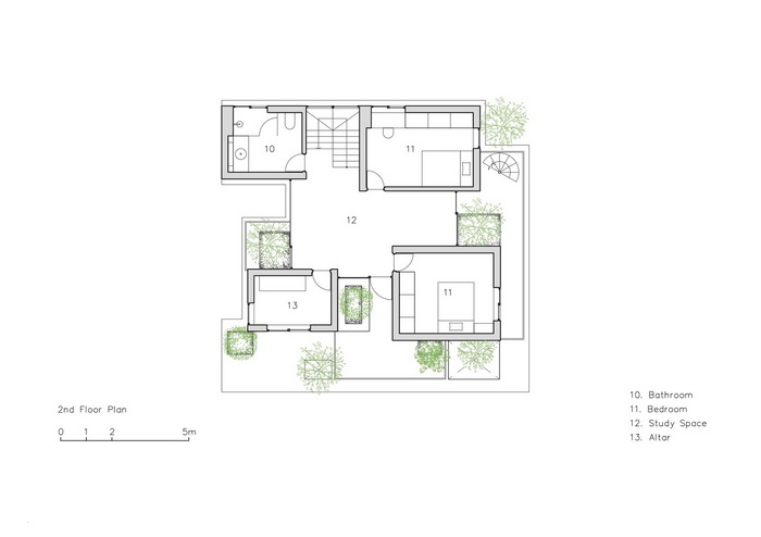
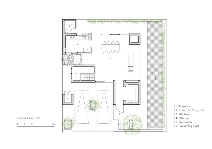
ตัวบ้านมีลักษณะเป็นบ้านคอนกรีตสามชั้น โครงสร้างรูปทรงสี่เหลี่ยม โดยแต่ละชั้นจะมีการจัดวางรูปแบบที่แตกต่างกันออกไป สร้างความสลับซับซ้อนเพื่อให้มีพื้นที่ว่างสำหรับปลูกต้นไม้ เกิดเป็นสวนเล็กๆ ท่ามกลางตึกสูงใหญ่รอบบ้าน

ปัจจุบันชาวเวียดนามรุ่นใหม่เริ่มเข้าหาธรรมชาติมากขึ้น ซึ่งการออกแบบบ้านลักษณะนี้ก็ถือว่าสามารถตอบโจทย์ประชาชนที่อาศัยอยู่ในพื้นที่นี้ได้เป็นอย่างดี

ภายในตกแต่งสไตล์ปูนเปลือย พื้นที่ชั้นล่างจะเป็นห้องนั่งเล่นโล่งกว้าง อีกหนึ่งมุมพักผ่อนสำหรับสมาชิกภายในครอบครัว ผนังส่วนใหญ่ติดตั้งกระจกบานใส เพื่อให้แสงส่องผ่านเข้ามาภายในบ้านได้อย่างทั่วถึง อีกทั้งยังเปิดให้เห็นวิวของต้นไม้ที่อยู่บริเวณโดยรอบได้

วัสดุส่วนใหญ่ที่นำมาใช้ในการก่อสร้าง เป็นวัสดุท้องถิ่นที่หาได้จากธรรมชาติ และความพิเศษของบ้านหลังนี้คือ ผนังหินขัดที่ใช้ในการตกแต่งภายใน ได้รับความนิยมอย่างแพร่หลายในยุค 80s รวมถึงในยุคนี้ด้วยเช่นกัน

แต่ละชั้นจะมีระเบียงขนาดพอเหมาะ จัดวางเก้าอี้นั่งเล่น พร้อมพื้นที่สำหรับปลูกต้นไม้ สร้างความร่มรื่นให้กับมุมนั่งพักผ่อนนอกบ้าน

จากในรูปจะสังเกตได้ว่าแต่ละชั้นจะมีการออกแบบที่แตกต่างกันออกไป ทั้งนี้ก็เพื่อสร้างเป็นพื้นที่ว่างสำหรับปลูกต้นไม้สูงใหญ่ เปิดให้ต้นไม้เจริญเติบโตได้อย่างเต็มที่

และนี่ก็เป็นบ้านอีกหลังหนึ่งที่ได้รับการออกแบบอย่างมีประสิทธิภาพ ช่วยให้คนได้อยู่ใกล้ชิดกับธรรมชาติ เหมาะสำหรับคนเมืองที่อยู่อาศัยอยู่ท่ามกลางมลภาวะทางอากาศ ใครที่สนใจแบบบ้านสไตล์นี้ก็ลองไปศึกษาข้อมูลเพิ่มเติมกันดูนะคะ






ขอบคุณข้อมูลจาก : www.sanook.com/home/14597/
ที่มา : archdaily
ภาพ : archdaily
|