/home/homedecor/domains/www1.homedecorthai.com/public_html/templates/default/ext/ui/article_detail.tpl.php แบบบ้านชั้นเดียว สีขาวแสนอบอุ่น
 
 
    
   
     
     
   
 

แบบบ้านชั้นเดียว สีขาวแสนอบอุ่น

แบบบ้านชั้นเดียว

3 มี.ค. 2560
แบบบ้านชั้นเดียว สีขาวให้บรรยากาศแสนอบอุ่น
 Photographer: Hodges 

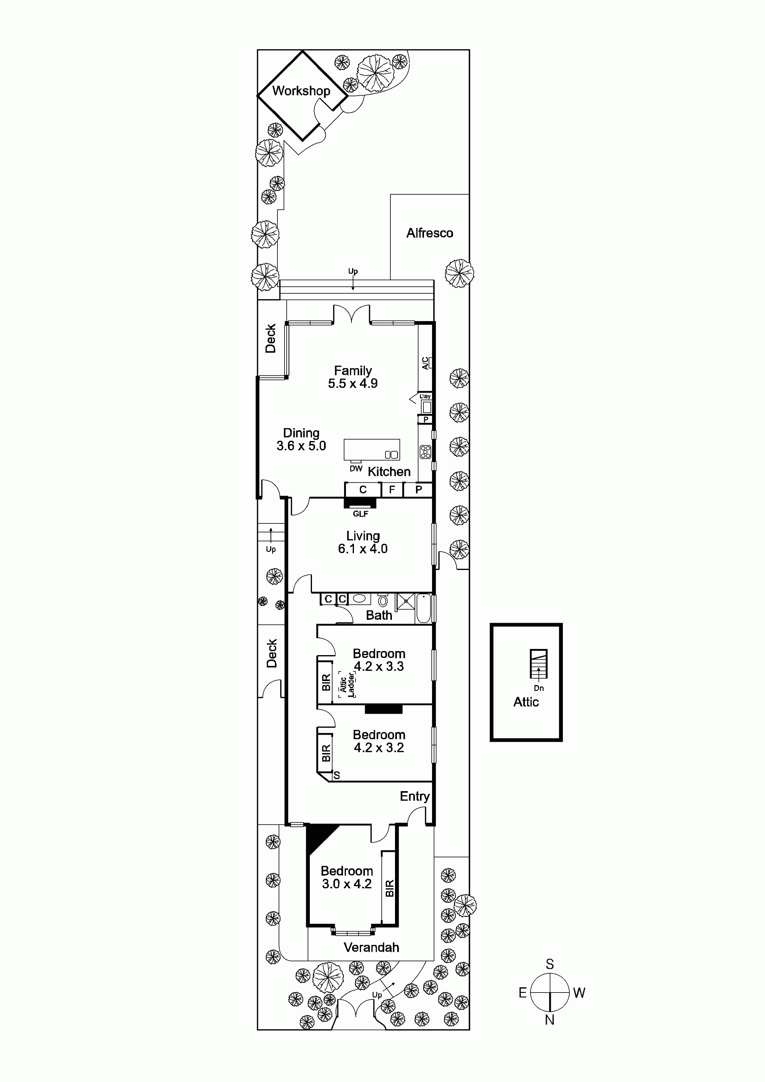
แบบบ้านชั้นเดียว หลังนี้ ใช้พื้นที่จำกัดได้ดีมากๆ เพราะมีห้องนอนถึง 3 ห้องนอน ห้องน้ำใหญ่ 1 ห้อง มีห้องนั่งเล่น และห้องรับประทานอาหารด้วย  ตัวบ้านจากภายนอกเป็นสีขาว ทำให้บ้านโดดเด่นมากๆ ภายในบ้านใช้การทาสีผนังบ้านเป็นสีขาวทั้งหลัง ทำให้ดูสว่างและกว้างมากขึ้น พื้นไม้ถูกขัดอย่างเงางาม สีไม้เป็นสีน้ำตาลอ่อน ยิ่งทำให้บ้านน่าอยู่ขึ้นไปอีก

เฟอร์นิเจอร์ของตกแต่งส่วนใหญ่ใช้มีเอิร์ทโทน เน้น น้ำตาล น้ำตาลอ่อน และเป็นไม้ส่วนใหญ่ 
ขนาดของห้องนอนถูกออกแบบไว้ขนาดพอดี ตามแบบแปลน มีขนาด 4.2 x 3.3 m ,4.2 x 3.2 m และ 4.2 x 3.0 m ตามลำดับ ห้องน้ำถูกออกแบบให้เป็นสีขาวล้วนสะอาดตา
และมีสวนหลังบ้านเป็นพื้นที่กิจกรรมครอบครัวอีกด้วย
แปลนบ้าน
ติดตามข้อมูลดีๆ จาก Homedecorthai ได้ที่
www.homedecorthai.com
FB: www.facebook.com/HomeDecorThaiOfficial
IG:homedecorthai (www.instagram.com/homedecorthai)

 


แหล่งที่มา :
จำนวนคนอ่าน : 4664 คน

บทความที่ใกล้เคียงกัน : แบบบ้านชั้นเดียว

 

ไอเดียมาใหม่ใน"แบบบ้าน"

แบบบ้าน

บ้านไม้ชั้นเดียว ตกแต่งแบบเรียบง่าย

26 ธ.ค. 2560
บ้านไม้ชั้นเดียว ตกแต่งแบบเรียบง่าย

บ้านไม้ชั้นเดียว ออกแบบตกแต่งแบบเรียบง่าย หลังคาหน้าจั่วและกระจกบนใหญ่ พื้นที่การใช้งานภายในบ้านสะดวก ครบครันมีทั้งห้องครัว ห้องรับแขก ห้องทานอาหาร ห้องนังเล่น ซึ่งทั้งหมดเป็นพื้นที่เชื่อมต่อกัน การตกแต่งภายในเป็นแบบเรียบง่ายดูอบอุ่น    Read more

พาไปชม บ้านแห่งต้นไม้ ผสมผสานธรรมชาติเข้ากับพื้นที่อยู่อาศัยในสไตล์โมเดิร์นที่เรียบง่าย

13 ธ.ค. 2560
พาไปชม บ้านแห่งต้นไม้ ผสมผสานธรรมชาติเข้ากับพื้นที่อยู่อาศัยในสไตล์โมเดิร์นที่เรียบง่าย

    Read more

สวนเล็กๆ ก็สวยได้

20 ก.ย. 2560
สวนเล็กๆ ก็สวยได้

สวนเล็กๆ ก็สวยได้ ขนาดนั้นบางทีก็ไม่สำคัญเสมอไป ขึ้นอยู่กับความพอดี พอใจ ของแต่ละคน อย่าเพิ่งคิดไปไกลครับ วันนี้เราเอาตัวอย่างการจัดสวนแบบเล็กๆ น่ารักๆ มาฝากกันครับ    Read more

แบบบ้านสองชั้น สไตล์โมเดิร์น

20 ก.ย. 2560
แบบบ้านสองชั้น สไตล์โมเดิร์น

เป็นการออกแบบที่ดูสวยหรูเรียบง่าย ร่วมสมัย ภายตกแต่งผนังโดยการก่ออิฐ เน้นโชว์พื้นผิว พื้นที่รับประทานอาหารเชื่อมต่อกับห้องครัวและห้องนั่งเล่น เปิดโล่งถึงกันหมด ทำให้ดูกว้างขวาง และยังมีสระว่ายน้ำที่ล้อมรอบด้วยสีเขียวของสวนเพื่อเพิ่มความสดชื่นให้กับบ้านอีกด้วย    Read more

บ้านสไตล์วิลล่า

14 ก.ย. 2560
บ้านสไตล์วิลล่า

บ้านสไตล์วิลล่า ในแคลิฟอร์เนีย ออกแบบโดย Turnbull Griffin Haesloop เป็นความลงตัวที่สมบูรณ์แบบระหว่างในร่มและกลางแจ้ง ที่ออกแบบได้กลมกลืนกับบรรยากาศโดยรอบ พื้นท่่กลางแจ้งมีสระว่ายน้ำและสระน้ำตามธรรมชาติ ห้องนอน ห้องครัว และพื้นที่ต่างๆ อยู่ภายใต้หลังคาแบบยกลอย    Read more
  1   2 3 4 Next
Topics 1 - 5 of 105

ชมไอเดีย "แบบบ้าน" ทั้งหมด