/home/homedecor/domains/www1.homedecorthai.com/public_html/templates/default/ext/ui/article_detail.tpl.php แบบบ้านสองชั้น สไตล์โมเดิร์น
 
 
    
   
     
     
   
 

แบบบ้านสองชั้น สไตล์โมเดิร์น

แบบบ้านสองชั้น|แบบบ้านสไตล์โมเดิร์น

20 ก.ย. 2560
แบบบ้านสองชั้น สไตล์โมเดิร์น เป็นการออกแบบที่ดูสวยหรูเรียบง่าย ร่วมสมัย ภายตกแต่งผนังโดยการก่ออิฐ เน้นโชว์พื้นผิว พื้นที่รับประทานอาหารเชื่อมต่อกับห้องครัวและห้องนั่งเล่น เปิดโล่งถึงกันหมด ทำให้ดูกว้างขวาง และยังมีสระว่ายน้ำที่ล้อมรอบด้วยสีเขียวของสวนเพื่อเพิ่มความสดชื่นให้กับบ้านอีกด้วย ไปชมกันเลยดีกว่าครับว่าจะน่าอยู่ขนาดไหน
แบบบ้านโมเดิร์น
 
แบบบ้านโมเดิร์นสองชั้น
 
บ้านสองชั้น
 
สระน้ำ
 
นามหญ้าหน้าบ้าน
 
ผนังปูนดิบ
 
ห้องนั่งเล่น
 
โซฟ้าสีขาว
 
ห้องครัวและห้องทานอาหาร
 
ตกแต่งห้องครัวพร้อมห้องทานอาหาร
 
ตู้บิวอินกั้นห้อง
 
ตู้บิวอินกันห้องนั่งเล่นและห้องครัว
 
พื้นผนังห้องสีเข็ม
 
บันไดไม้
 
บันได
 
ออกแบบห้องนอน
 
หัวเตียงไม้
 
ลวดลายผนัง
 
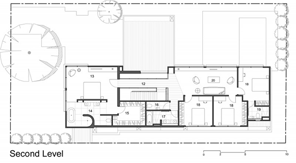
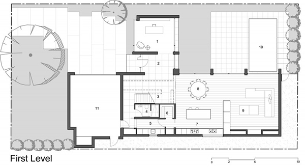
แปลน
 
แปลนบ้าน
ขอบคุณข้อมูลจาก:freshome.com
 

แหล่งที่มา :
จำนวนคนอ่าน : 12448 คน

บทความที่ใกล้เคียงกัน : แบบบ้านสองชั้น, แบบบ้านสไตล์โมเดิร์น

 

ไอเดียมาใหม่ใน"Home Idea"

Home Idea

ตกแต่งดีมีแต่เฮง รวมไอเท็มขึ้นบ้านใหม่เสริมมงคลอยู่แล้วเฮงสุดๆ!

7 ธ.ค. 2561
ตกแต่งดีมีแต่เฮง รวมไอเท็มขึ้นบ้านใหม่เสริมมงคลอยู่แล้วเฮงสุดๆ!

จะมีอะไรมีความสุขมากกว่าการได้ขึ้นบ้านใหม่ด้วยวันดีๆ และสำหรับใครที่ได้ฤกษ์งามยามดีมีโอกาสได้ขึ้นบ้านใหม่ทั้งทีต้องอย่าลืมไอเท็มดีๆ ที่จะช่วยเสริมสิริมงคลให้บ้านใหม่ของคุณอยู่แล้วดี อยู่แล้วเฮงด้วยนะ!     Read more

รีโนเวทบ้านเก่า แบบผสมผสาน สวยงามลงตัว

2 มี.ค. 2561
รีโนเวทบ้านเก่า แบบผสมผสาน สวยงามลงตัว

รีโนเวทบ้านเก่า แบบผสมผสาน สวยงามลงตัว วันนี้พาไปชม ไอเดียการรีโนเวทบ้านเก่า แบบครึ่งไม้ครึ่งปูนแบบผสมผสานจาก Facebook ปลาทูเค็ม รีโนเวทโฮม ใครที่มีโครงการที่จะรีโนเวทบ้าน แต่ยังคิดไม่ออกว่าจะทำแนวไหนดี ลองเข้าไปชมไอเดียกันก่อนได้เลย ครับ    Read more

บ้านไม้ชั้นเดียว ตกแต่งแบบเรียบง่าย

26 ธ.ค. 2560
บ้านไม้ชั้นเดียว ตกแต่งแบบเรียบง่าย

บ้านไม้ชั้นเดียว ออกแบบตกแต่งแบบเรียบง่าย หลังคาหน้าจั่วและกระจกบนใหญ่ พื้นที่การใช้งานภายในบ้านสะดวก ครบครันมีทั้งห้องครัว ห้องรับแขก ห้องทานอาหาร ห้องนังเล่น ซึ่งทั้งหมดเป็นพื้นที่เชื่อมต่อกัน การตกแต่งภายในเป็นแบบเรียบง่ายดูอบอุ่น    Read more

พาไปชม บ้านแห่งต้นไม้ ผสมผสานธรรมชาติเข้ากับพื้นที่อยู่อาศัยในสไตล์โมเดิร์นที่เรียบง่าย

13 ธ.ค. 2560
พาไปชม บ้านแห่งต้นไม้ ผสมผสานธรรมชาติเข้ากับพื้นที่อยู่อาศัยในสไตล์โมเดิร์นที่เรียบง่าย

    Read more

สวนเล็กๆ ก็สวยได้

20 ก.ย. 2560
สวนเล็กๆ ก็สวยได้

สวนเล็กๆ ก็สวยได้ ขนาดนั้นบางทีก็ไม่สำคัญเสมอไป ขึ้นอยู่กับความพอดี พอใจ ของแต่ละคน อย่าเพิ่งคิดไปไกลครับ วันนี้เราเอาตัวอย่างการจัดสวนแบบเล็กๆ น่ารักๆ มาฝากกันครับ    Read more
  1   2 3 4 Next
Topics 1 - 5 of 126

ชมไอเดีย "Home Idea" ทั้งหมด