/home/homedecor/domains/www1.homedecorthai.com/public_html/templates/default/ext/ui/article_detail.tpl.php อพาร์ทเมนท์ตะกร้า อาคารสมัยใหม่ในกรุงปารีส
 
 
    
   
     
     
   
 

อพาร์ทเมนท์ตะกร้า อาคารสมัยใหม่ในกรุงปารีส

19 ธ.ค. 2555

 


อพาร์ทเมนท์ตะกร้า อาคารสมัยใหม่ในกรุงปารีส
 
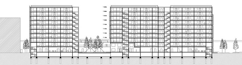
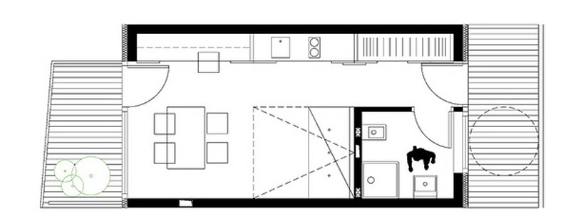
          วันนี้ homedecorthai ไปเจอไอเดียการออกแบบอพาร์ทเมนท์ตะกร้าในกรุงปารีส ประเทศฝรั่งเศสมาฝากค่ะ เป็นโครงสร้างอาคารที่ไม่เหมือนใคร ซึ่งการออกแบบอาคารนี้แบ่งเป็นสองส่วน มี 11 ชั้น มีชั้นใต้ดินที่เพียงพอสำหรับผู้ใช้บริการ มีห้องสตูดิโอให้ในแต่ละชั้น และตัวอาคารนั้นจะมีความหนาแน่นและแข็งแรงมากเพราะจะเป็นโครงสร้างของคอนกรีตและเหล็กที่เป็นโครงสร้างหลัก ส่วนในเรื่องของการตกแต่งภายในนั้นจะมีมีบันไดเวียและจะคลุมไว้ด้วยตาข่ายโลหะ เพื่อเพิ่มความปลอดภัยให้กับทางเดินแต่ยังสามารถมองบรรยากาศภายนอกได้ การออกแบบอาคารนี้จะใส่ใจในเรื่องของฉนวนกันความร้อนและการถ่ายเทอากาศได้เป็นอย่างดี และตัวอาคารนี้จะเป็นการใช้ผลังงานทดแทนจากแสงอาทิตย์ไว้บนหลังคาด้วยค่ะ 
 
อพาร์ทเมนท์ตะกร้า
 
ออกแบบตกแต่งภายใน
 
ออกแบบอาคาร
 
ตัวอย่างอาคาร
 
โมเดลอาคาร
 
แปลน
 
แปลนตัวอย่าง
 
ออกแบบตัวอย่างอาคาร
 
แปลนอาคาร
 

 


แหล่งที่มา : www.designboom.com
จำนวนคนอ่าน : 8412 คน

บทความที่ใกล้เคียงกัน :

 

ไอเดียมาใหม่ใน"ร้านจำหน่าย หินขัด"

ร้านจำหน่าย หินขัด

10 ห้องนั่งเล่นสุดเริดสไตล์โมเดิร์น!!

15 ต.ค. 2557
10 ห้องนั่งเล่นสุดเริดสไตล์โมเดิร์น!!

วันนี้จัดหนักให้กับชาวเจ้าของบ้านที่ต้องการแต่งห้องนั่งเล่นด้วย 10 ไอเดียห้องนั่งเล่นสุดเริด ใครที่มีโครงการที่จะแต่งห้องนั่งเล่นใหม่ หรือว่ากำลังแต่งห้องนั่งเล่นอยู่ตอนนี้แล้วไอเดียเกิดตันขึ้นมาละก็ นี่เลยกับหลากไอเดียแต่งห้องนั่งเล่นสวยๆ จัดไปแบบนี่นิดแบบนั่นหน่อย ก็เจิดเป็นสไตล์เราได้ สวยเริดอย่าได้แคร์     Read more

การเตรียมห้องใหม่กับ(เจ้าตัวเล็ก)

9 ต.ค. 2557
การเตรียมห้องใหม่กับ(เจ้าตัวเล็ก)

การจัดเตรียมห้องให้เหมาะสม สะดวกสบายและแสงสว่างในห้องลูกน้อยควรเลือกใช้ดวงไฟแบบไฟหรี่ เด็กเล็กมีปฎิกริยาตอบสนองต่อสีเข้มและรูปร่างรูปทรง ควรเลือกโทนสีพื้นห้องเป็นสีอ่อนๆ และเพิ่มสีสันสดใสรูปทรงเข้าไป เพราะจะง่ายต่อการเปลี่ยนแปลงของเด็ก    Read more

แบบบันไดสไลเดอร์ไม่ธรรมดาจริงๆ

8 ต.ค. 2557
แบบบันไดสไลเดอร์ไม่ธรรมดาจริงๆ

สำหรับใครที่กำลังอยากได้ไอเดียแบบไม่ธรรมดาสำหรับบันไดในบ้าน ลองมาดูไอเดียนี้ก่อนคะ ซึ่งเป็นแบบบันไดบ้านของอพาร์ทเมนต์สองชั้นในนิวยอร์ก ออกแบบโดย Turett Collaborative ที่ว่าไม่ธรรมดานั้น ก็เพราะเป็นบันได้ในรูปแบบสไลเดอร์ทำจากสแตนเลส เป็นบันได้ที่เราสามารถ สามารถสไลด์ลงมาจากชั้นสองได้เลย ไม่ต้องเดินเหมือนบันไดธรรมดาๆ ดูแล้วน่าจะสะดวกและน่าสนุกไม่น้อยเลยนะคะ ถ้าบ้านใครมีเด็กๆรับรองต้องชอบแน่ๆเลยละค้า!    Read more

แบบบ้านโมเดิร์น พื้นที่แคบๆ ที่แสนจะลงตัว

29 ก.ย. 2557
แบบบ้านโมเดิร์น พื้นที่แคบๆ ที่แสนจะลงตัว

เป็นการออกแบบบ้านในพื้นที่แคบๆ ได้อย่างลงตัวมาก เพราะบ้านที่ปลูกบนพื้นที่แคบๆ นี้นั้นเหมาะกับพื้นที่ในเมืองที่มีพื้นที่ที่แสนจะจำกัดมาก เนื่องด้วยเป็นพื้นที่ที่มีราคาแพงและเป็นที่ต้องการของใครหลายๆ คน วันนี้ homedecorthai จึงขอแนะนำการออกแบบบ้านโมเดิร์น บนพื้นที่แคบๆ กัน    Read more

แต่งห้องครัวสไตล์ญี่ปุ่น

11 ก.ย. 2557
แต่งห้องครัวสไตล์ญี่ปุ่น

ห้องครัวโมเดิร์นญี่ปุ่นสไตล์ ออกแบบตกแต่งได้สวยงาม หรู คลาสสิก มากๆค่ะ    Read more
  1   2 3 4 Next
Topics 1 - 5 of 326

ชมไอเดีย "ร้านจำหน่าย หินขัด" ทั้งหมด