/home/homedecor/domains/www1.homedecorthai.com/public_html/templates/default/ext/ui/article_detail.tpl.php แต่งคอนโด สตูดิโอ ขนาด 38 ตารางเมตร เล็กแต่ครบครัน
 
 
    
   
     
     
   
 

แต่งคอนโด สตูดิโอ ขนาด 38 ตารางเมตร เล็กแต่ครบครัน

ไอเดียแต่งคอนโด

17 ก.ย. 2559

 

แต่งคอนโดห้องสตูดิโอ ใช้พื้นที่เล็กให้ครบครัน
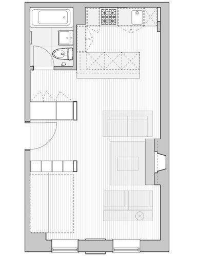
     วันนี้ Homedecorthai นำเสนอการจัดห้องคอนโดขนาด 38 ตารางเมตร ซึ่งเป็นขนาดที่พอเหมาะ รับรองว่าจัดออกมาสวยและมีโซนเก๋ๆ และมีไอเดียให้นำไปปรับแต่งห้องของคุณได้แน่นอน มาเริ่มกันเลย..

          ห้องคอนโดขนาด 38 ตารางเมตรนี้เป็นของ Jay Roberts เจ้าของห้องที่เช่าห้องนี้มานานกว่า 8 ปี เค้าอยากเปลี่ยนแปลงมันโดยจ้างสถาปนิกไอเดียดีอย่าง Steve Blatz โดยตีฟยอมรับว่าห้องสตูดิโอห้องนี้เป็นพื้นที่เล็กที่สุดที่เค้าเคยออกแบบมา โดยทางเจย์บอกความต้องการให้สตีฟรู้ว่าเาอยากได้ครัวที่เปิดโล่ง ไม่มีการกั้นพื้นที่ห้องแต่อย่างใด แต่อยากให้กั้นส่วนของห้องน้ำและห้องแต่งตัว ทางสตีฟก็เห็นตรงกันจึงอกแบบครัวที่เปิดสามารถมองเห็นจากโซนห้องนั่งเล่น แต่กั้นโซนห้องน้ำห้องแต่งตัวและห้องนอนออกให้เป็นสัดส่วน

หลังจากชมไอเดียของสตีฟกันทุกมุมแล้วคุณคงจะรู้ว่า พื้นที่ 38 ตารางเมตร สามารถออกแบบให้ดูกว้างได้อย่างเหลือเชื่อแค่ไหน มาแต่งห้องคุณใหม่กันเถอะ ชมไอเดียการแต่งห้องอื่นๆได้ที่  Decor Idea ชมภาพทั้งหมดของ Jay Roberts
ติดตามข้อมูลดีๆ จาก Homedecorthai ได้ที่
www.homedecorthai.com
FB: www.facebook.com/HomeDecorThaiOfficial
IG:homedecorthai (www.instagram.com/homedecorthai)

 


แหล่งที่มา : www.apartmenttherapy.com
จำนวนคนอ่าน : 6597 คน

บทความที่ใกล้เคียงกัน : ไอเดียแต่งคอนโด

 

ไอเดียมาใหม่ใน"Review & Interview"

Review & Interview

ดิบๆ เรียบง่ายสไตล์โมเดิร์น

12 มี.ค. 2561
ดิบๆ เรียบง่ายสไตล์โมเดิร์น

ไอเดียการแต่งบ้าน ตึกแถว ทาวน์เฮ้าส์ หรือคอนโด ใครชอบการแต่งบ้านแนวดิบๆ เรียบง่าย แต่แฝงไว้ด้วยความโมเดิร์นไม่ควรพลาดครับ     Read more

ติดหน้าต่างอลูมิเนียมให้บ้านผนังไม้

9 มี.ค. 2561
ติดหน้าต่างอลูมิเนียมให้บ้านผนังไม้

บ้านผนังไม้ ติดตั้งหน้าต่างแบบบานเลื่อนอลูมิเนียมสีขาว ก็ดูโมเดิร์น ดูเก๋ไปอีกแบบนะครับ ขอบคุณรูปภาพจาก โชคอนันต์ กระจก อลูมิเนียม     Read more

ตกแต่งภายในสไตล์ร่วมสมัย ส่วนผสมที่ลงตัวด้วยอิฐและสีขาว

28 ก.พ. 2561
ตกแต่งภายในสไตล์ร่วมสมัย ส่วนผสมที่ลงตัวด้วยอิฐและสีขาว

ตกแต่งภายในสไตล์ร่วมสมัย ส่วนผสมที่ลงตัวด้วยอิฐและสีขาว คนชอบการตกแต่งภายในสไตล์ร่วมสมัยห้ามพลาด ไอเดียการตกแต่งภายในด้วยผนังอิฐที่ช่วยสร้างสีสันให้กับบ้านที่ถูกทาไว้ด้วยสีขาว จัดวางด้วยเฟอร์นิเจอร์สไตล์โมเดิร์นแบบเรียบๆ ยิ่งทำให้ภายในบ้านดูเงียบสงบและน่าอยู่มาก    Read more

ตกแต่งคอนโดสไตล์โมเดิร์น สะดวกครบครันทุกฟังค์ชันการใช้งาน

26 ก.พ. 2561
ตกแต่งคอนโดสไตล์โมเดิร์น สะดวกครบครันทุกฟังค์ชันการใช้งาน

ไอเดียตกแต่งคอนโดสไตล์โมเดิร์น สีเทาอ่อนภายในทำให้ห้องดูโปร่ง เลือกใช้เฟอร์นิเจอร์แบบอเนกประสงค์ เน้นประโยชน์การใช้งาน     Read more

แต่งห้องนอนสีชมพู

14 ก.พ. 2561
แต่งห้องนอนสีชมพู

ใครกำลังคิดจะตกแต่งห้องนอนใหม่ และเป็นแฟนพันธุ์แท้สีชมพูอยู่แล้วละก็ รับรองว่าไอเดียแต่งห้องนอน set นี้ ต้องถูกใจคุณแน่ๆ ไปเลือกกันว่าชอบแบบไหน ขอบอกว่าสวยสุดทุกห้องเลย    Read more
  1   2 3 4 Next
Topics 1 - 5 of 146

ชมไอเดีย "Review & Interview" ทั้งหมด