/home/homedecor/domains/www1.homedecorthai.com/public_html/templates/default/ext/ui/article_detail.tpl.php แบบบ้าน Eco ปูนเปลือยทั้งหลัง แบบเรียบง่าย
 
 
    
   
     
     
   
 

แบบบ้าน Eco ปูนเปลือยทั้งหลัง แบบเรียบง่าย

แบบบ้าน 2 ชั้น

2 มิ.ย. 2559

แบบบ้าน Eco ปูนเปลือยทั้งหลัง แบบเรียบง่าย
 

         สำหรับบ้านหลังนี้ออกแบบมาในลักษณะที่เป็นสองชั้นบนเนินเขา ที่มองเห็นทิวทัศน์รอบเมืองได้อย่างสวยงามทีเดียว สำหรับพื้นที่ของบ้าน Eco ชั้นสองนั้นจะเป็นพื้นที่กว้าง มีบันไดที่เป็นทางเดินสำหรับชมวิวจากชั้นแรกขึ้นมาชั้นสองจากด้านนอกบ้านมีมีระเบียงยื่นออกไป พูดถึงบ้านที่มีลักษณะเป็นปูนดิบนั้น จะให้ความรู้สึกถึงความแข็งกระด้างตัวปูนดิบนี้ แต่บ้านหลังนี้กลับรู้สึกถึงความอบอุ่นด้วยการตกแต่งภายในที่ดูเป็นโมเดิร์น ไม่ว่าจะเป็นชุดเฟอร์นิเจอร์ที่ตกแต่งและด้วยผิวผนังพื้นปูนนั้นก็ให้ความรู้สึกอบอุ่นได้เช่นกันรวมถึงพื้นที่สีน้ำตาลด้วย

 

บ้านปูน
 
บ้านปูน 2 ชั้น
 
บ้าน eco
 
บ้านปูนสองชั้น
 
หน้าต่างไม้
 
ชั้นวางหนังสือสีขาว
 
โซฟาสีดำ
 
พรม
 
โซฟาสีดำ
 
เคาน์เตอร์ครัว
 
โคมไฟ
 
งกบสแตนเลส
 
ห้องน้ำ
 
ห้องน้ำ เบื้องห้องน้ำสีขาว
 
บันได้ไม้
 
หน้าต่างไม้
 
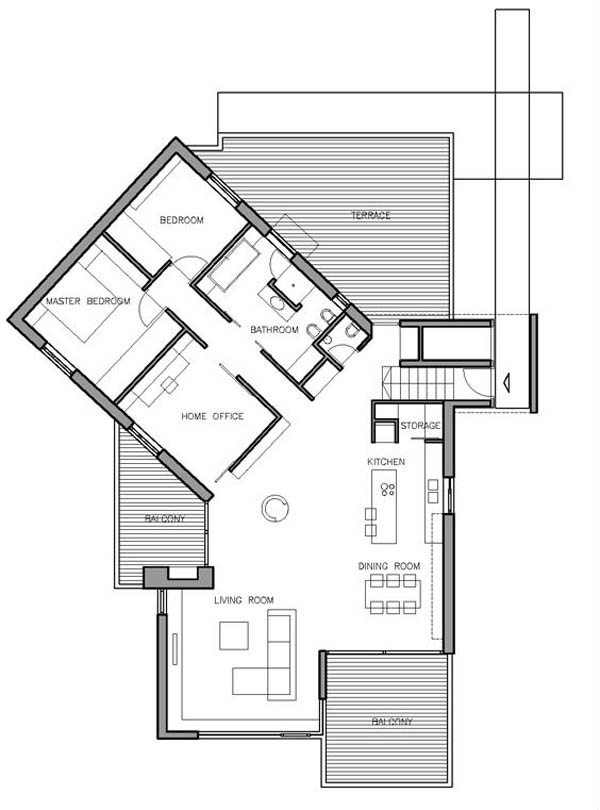
แปลนบ้าน
 

แปลนบ้าน

 


แหล่งที่มา : freshome.com
จำนวนคนอ่าน : 18491 คน
 

ไอเดียมาใหม่ใน"แบบบ้าน"

แบบบ้าน

บ้านไม้ชั้นเดียว ตกแต่งแบบเรียบง่าย

26 ธ.ค. 2560
บ้านไม้ชั้นเดียว ตกแต่งแบบเรียบง่าย

บ้านไม้ชั้นเดียว ออกแบบตกแต่งแบบเรียบง่าย หลังคาหน้าจั่วและกระจกบนใหญ่ พื้นที่การใช้งานภายในบ้านสะดวก ครบครันมีทั้งห้องครัว ห้องรับแขก ห้องทานอาหาร ห้องนังเล่น ซึ่งทั้งหมดเป็นพื้นที่เชื่อมต่อกัน การตกแต่งภายในเป็นแบบเรียบง่ายดูอบอุ่น    Read more

พาไปชม บ้านแห่งต้นไม้ ผสมผสานธรรมชาติเข้ากับพื้นที่อยู่อาศัยในสไตล์โมเดิร์นที่เรียบง่าย

13 ธ.ค. 2560
พาไปชม บ้านแห่งต้นไม้ ผสมผสานธรรมชาติเข้ากับพื้นที่อยู่อาศัยในสไตล์โมเดิร์นที่เรียบง่าย

    Read more

สวนเล็กๆ ก็สวยได้

20 ก.ย. 2560
สวนเล็กๆ ก็สวยได้

สวนเล็กๆ ก็สวยได้ ขนาดนั้นบางทีก็ไม่สำคัญเสมอไป ขึ้นอยู่กับความพอดี พอใจ ของแต่ละคน อย่าเพิ่งคิดไปไกลครับ วันนี้เราเอาตัวอย่างการจัดสวนแบบเล็กๆ น่ารักๆ มาฝากกันครับ    Read more

แบบบ้านสองชั้น สไตล์โมเดิร์น

20 ก.ย. 2560
แบบบ้านสองชั้น สไตล์โมเดิร์น

เป็นการออกแบบที่ดูสวยหรูเรียบง่าย ร่วมสมัย ภายตกแต่งผนังโดยการก่ออิฐ เน้นโชว์พื้นผิว พื้นที่รับประทานอาหารเชื่อมต่อกับห้องครัวและห้องนั่งเล่น เปิดโล่งถึงกันหมด ทำให้ดูกว้างขวาง และยังมีสระว่ายน้ำที่ล้อมรอบด้วยสีเขียวของสวนเพื่อเพิ่มความสดชื่นให้กับบ้านอีกด้วย    Read more

บ้านสไตล์วิลล่า

14 ก.ย. 2560
บ้านสไตล์วิลล่า

บ้านสไตล์วิลล่า ในแคลิฟอร์เนีย ออกแบบโดย Turnbull Griffin Haesloop เป็นความลงตัวที่สมบูรณ์แบบระหว่างในร่มและกลางแจ้ง ที่ออกแบบได้กลมกลืนกับบรรยากาศโดยรอบ พื้นท่่กลางแจ้งมีสระว่ายน้ำและสระน้ำตามธรรมชาติ ห้องนอน ห้องครัว และพื้นที่ต่างๆ อยู่ภายใต้หลังคาแบบยกลอย    Read more
  1   2 3 4 Next
Topics 1 - 5 of 105

ชมไอเดีย "แบบบ้าน" ทั้งหมด