/home/homedecor/domains/www1.homedecorthai.com/public_html/templates/default/ext/ui/article_detail.tpl.php แบบบ้านสไตล์โมเดิร์น ตกแต่งโทนสีธรรมชาติ
 
 
    
   
     
     
   
 

แบบบ้านสไตล์โมเดิร์น ตกแต่งโทนสีธรรมชาติ

แบบบ้านสไตล์โมเดิร์น

2 ส.ค. 2559
แบบบ้านสไตล์โมเดิร์น ตกแต่งโทนสีธรรมชาติ
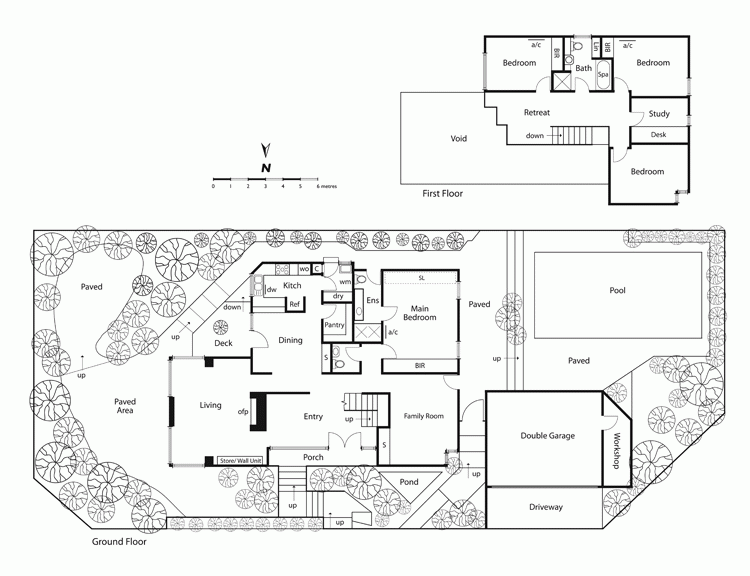
     บ้านหลังใหญ่ที่มี 4 ห้องนอน สไตล์โมเดิร์น ภายในตกแต่งโดยใช้โทนสีธรรมชาติ เพื่อให้รับกับบานกระจกรายล้อมรอบบ้านเปิดให้เห็นวิวภายนอกของบ้าน ที่ตกแต่งด้วยสวนธรรมชาติอันเขียวขจี เป็นผลงานออกแบบบ้านชิ้นแรกของ Andre Piotrowski 
   ห้องโถงใหญ่ของบ้านออกแบบคล้ายแกลลอรี่แสดงภาพวาด ลูกเล่นที่เค้าใช้กับการออกแบบบันไดคือ ใช้โครงเหล็กดีไซน์แพทเทิร์นเก๋ๆทำให้บันไดดูเป็นเอกลักษณ์ที่น่ามอง 
 จะสังเกตุได้ว่า บ้านหลังนี้อังเดรเค้ามีความตั้งใจให้ออกมาในโทนธรรมชาติ โดยสีที่เล่นส่วนใหญ่คือ ขาว ครีม น้ำตาล และสีเขียว ทำให้บ้านดูกลมกลืนกับธรรมชาติเขียวชอุ่มภาพนอกที่มองได้ชัดเจนเนื่องจากเป็นกระจกรอบด้าน ผู้อาศัยภายในบ้านจะได้รับธรรมชาติจากภายนอกได้เต็มๆ

      ภายนอกบ้าน มีการปลูกต้นไม้เน้นสีเขียว มีสระว่ายน้ำภายนอก สระเล่นลวดลายสวยงาม กระเบื้องปูรอบสระสีอิฐน้ำตาลแดงตัดกับน้ำในสระที่สีฟ้าสวยงามมากค่ะ

ติดตามข้อมูลดีๆ จาก Homedecorthai ได้ที่

FB: www.facebook.com/HomeDecorThaiOfficial

IG:homedecorthai (www.instagram.com/homedecorthai)

 


แหล่งที่มา : www.hodges.com
จำนวนคนอ่าน : 6062 คน

บทความที่ใกล้เคียงกัน : แบบบ้านสไตล์โมเดิร์น

 

ไอเดียมาใหม่ใน"แบบบ้าน"

แบบบ้าน

บ้านไม้ชั้นเดียว ตกแต่งแบบเรียบง่าย

26 ธ.ค. 2560
บ้านไม้ชั้นเดียว ตกแต่งแบบเรียบง่าย

บ้านไม้ชั้นเดียว ออกแบบตกแต่งแบบเรียบง่าย หลังคาหน้าจั่วและกระจกบนใหญ่ พื้นที่การใช้งานภายในบ้านสะดวก ครบครันมีทั้งห้องครัว ห้องรับแขก ห้องทานอาหาร ห้องนังเล่น ซึ่งทั้งหมดเป็นพื้นที่เชื่อมต่อกัน การตกแต่งภายในเป็นแบบเรียบง่ายดูอบอุ่น    Read more

พาไปชม บ้านแห่งต้นไม้ ผสมผสานธรรมชาติเข้ากับพื้นที่อยู่อาศัยในสไตล์โมเดิร์นที่เรียบง่าย

13 ธ.ค. 2560
พาไปชม บ้านแห่งต้นไม้ ผสมผสานธรรมชาติเข้ากับพื้นที่อยู่อาศัยในสไตล์โมเดิร์นที่เรียบง่าย

    Read more

สวนเล็กๆ ก็สวยได้

20 ก.ย. 2560
สวนเล็กๆ ก็สวยได้

สวนเล็กๆ ก็สวยได้ ขนาดนั้นบางทีก็ไม่สำคัญเสมอไป ขึ้นอยู่กับความพอดี พอใจ ของแต่ละคน อย่าเพิ่งคิดไปไกลครับ วันนี้เราเอาตัวอย่างการจัดสวนแบบเล็กๆ น่ารักๆ มาฝากกันครับ    Read more

แบบบ้านสองชั้น สไตล์โมเดิร์น

20 ก.ย. 2560
แบบบ้านสองชั้น สไตล์โมเดิร์น

เป็นการออกแบบที่ดูสวยหรูเรียบง่าย ร่วมสมัย ภายตกแต่งผนังโดยการก่ออิฐ เน้นโชว์พื้นผิว พื้นที่รับประทานอาหารเชื่อมต่อกับห้องครัวและห้องนั่งเล่น เปิดโล่งถึงกันหมด ทำให้ดูกว้างขวาง และยังมีสระว่ายน้ำที่ล้อมรอบด้วยสีเขียวของสวนเพื่อเพิ่มความสดชื่นให้กับบ้านอีกด้วย    Read more

บ้านสไตล์วิลล่า

14 ก.ย. 2560
บ้านสไตล์วิลล่า

บ้านสไตล์วิลล่า ในแคลิฟอร์เนีย ออกแบบโดย Turnbull Griffin Haesloop เป็นความลงตัวที่สมบูรณ์แบบระหว่างในร่มและกลางแจ้ง ที่ออกแบบได้กลมกลืนกับบรรยากาศโดยรอบ พื้นท่่กลางแจ้งมีสระว่ายน้ำและสระน้ำตามธรรมชาติ ห้องนอน ห้องครัว และพื้นที่ต่างๆ อยู่ภายใต้หลังคาแบบยกลอย    Read more
  1   2 3 4 Next
Topics 1 - 5 of 105

ชมไอเดีย "แบบบ้าน" ทั้งหมด